Vuorikatu 11, Porvoon viehättävässä Vanhassa kaupungissa, tarjoaa ainutlaatuisen mahdollisuuden omistaa pala historiaa. Tämä vuonna 1807 rakennettu hirsitalo henkii menneiden aikojen tunnelmaa ja odottaa uutta omistajaa, joka on valmis palauttamaan sen entiseen loistoonsa. Kahdessa kerroksessa sijaitseva talo tarjoaa tilaa suuremmallekin perheelle. Valoisat ja avarat huoneet, joissa on korkea huonekorkeus, luovat ilmavan ja kutsuvan ilmapiirin. Kauniit varaavat kaakeliuunit tuovat lämpöä ja tunnelmaa kylminä talvi-iltoina. Kokonaan omalla tontilla sijaitseva talo on säilyttänyt monia 1800-luvulle tyypillisiä yksityiskohtia, kuten väliovet ja listoitukset. Vaikka talo kaipaa hellää huolenpitoa ja korjaustoimenpiteitä säilyttääkseen charminsa seuraavat 30-vuotta, on se hintaan nähden loistava tilaisuus niille, jotka arvostavat vanhan rakennuksen luomaa ainutkertaista tunnelmaa ja ovat valmiita panostamaan sen kunnostukseen. Sijainti Porvoon keskustan tuntumassa vanhan Porvoon mäellä kirkon kainalossa tarjoaa erinomaiset palvelut ja kulttuurielämykset kävelyetäisyydellä. Tämä on ainutlaatuinen tilaisuus sinulle, joka haluat yhdistää historiallisen asumisen ja modernin kaupunkielämän. Tartu tilaisuuteen ja tee tästä talosta unelmiesi koti!

Porvoo, Vanha kaupunki, Vuorikatu 11
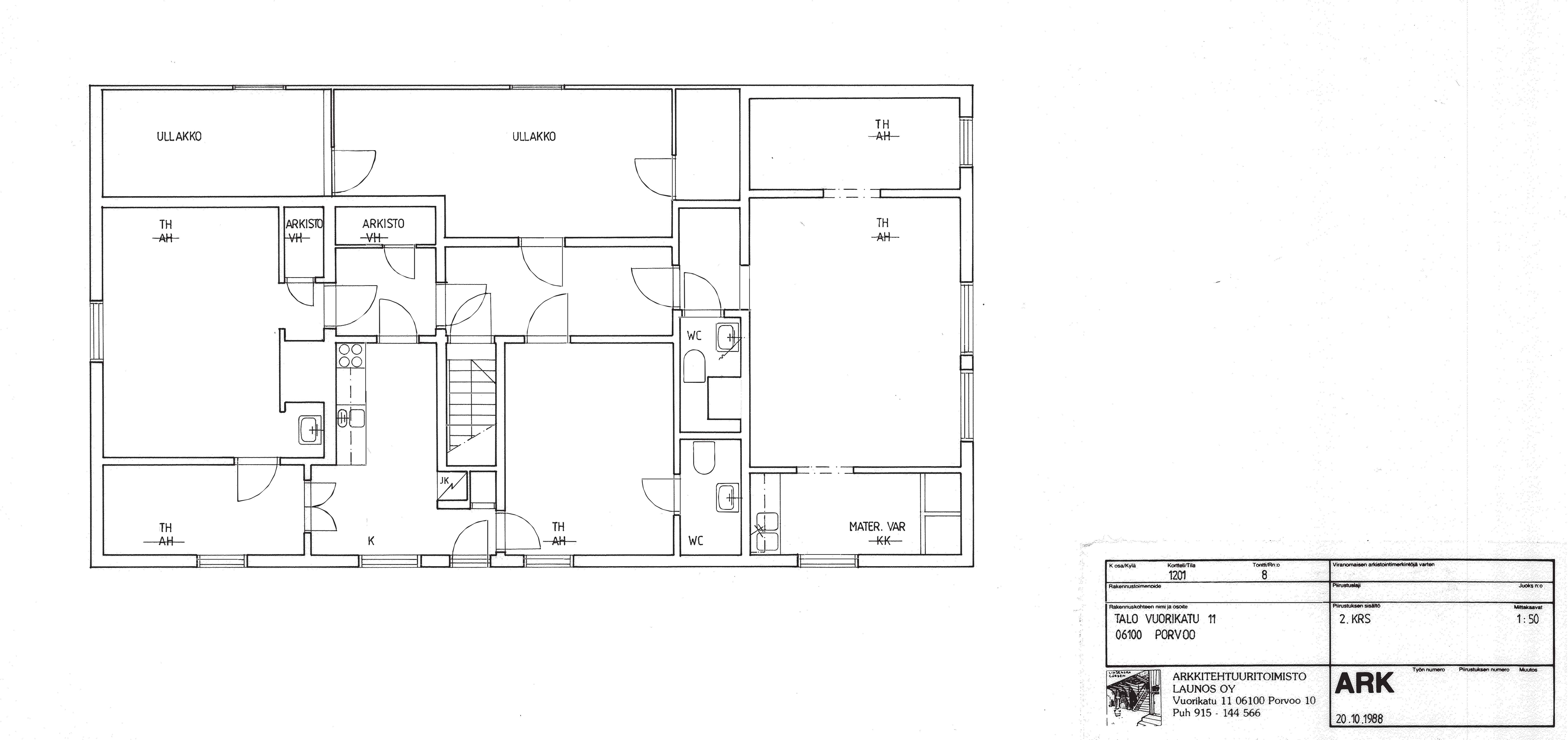
9h+k+eteinen+kuisti+saunaosasto.
Velaton myyntihinta
685 000 €
Kokonaispinta-ala
350.0 m2

Risto Volanen
Yrittäjä - Toimitusjohtaja
puh. +358500490489
risto.volanen@volanen.fi
-
Kohteen tyyppiOmakotitalo
-
Kokonaispinta-ala350 m²
-
Tontin kokonaispinta-ala697 m2
-
KuntoVälttävä
-
Huoneluku9
-
Keittiön kuvausPääosin 1970-luvulta. Tulee päivittää ja suositeltavaa myös tarkistaa alapohjarakenne sekä uusia se tarvittavilta osin.
-
Keittiön varusteiden lisätiedotJää-viileäkaappi
-
Pesuhuoneen varusteetSuihku, suihkuseinä, pesukone, kuivausrumpu, pesukoneliitäntä, pesuallas ja peilikaappi
-
KaavoitusAsemakaava
-
KattotyyppiHarjakatto
-
LämmitysjärjestelmäÖljy
-
Valmistumisvuosi1807
-
Rakennus- ja pintamateriaalitHirsi
-
Kerrosnumero2
-
Rakennukseen tehdyt korjaukset/remontitRakennusten edellinen peruskorjaus suoritettu 1970-luvun alkupuolella. Tämän laajan peruskorjauksen jälkeen on suoritettu ainoastaan kunnossapito-huoltotoimenpiteitä ks. kuntotutkimusraportit.



























Pyydä näyttöä tähän kohteeseen
Porvoo, Vanha kaupunki, Vuorikatu 11