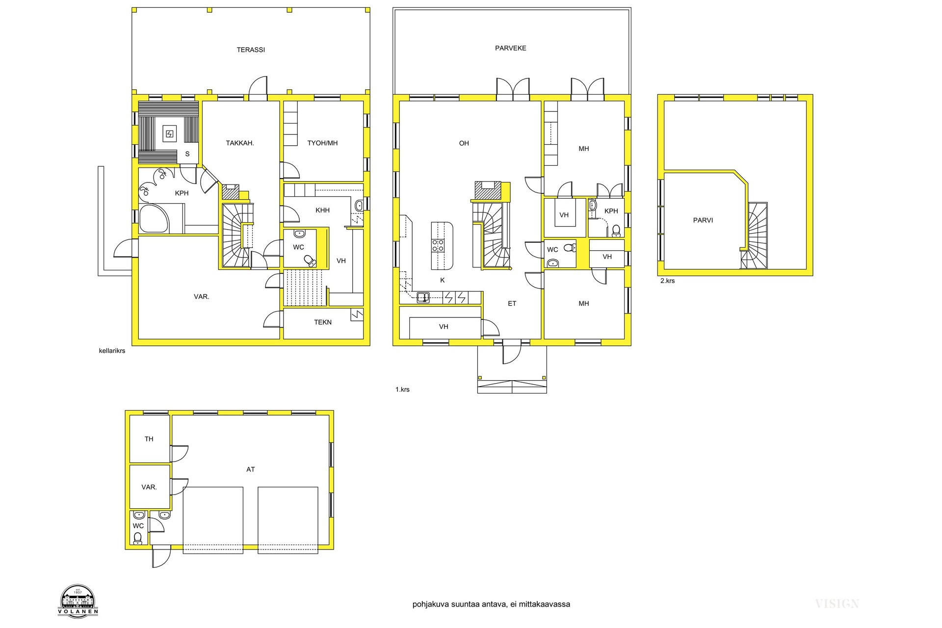
Upea omakotitalo rauhallisella asuinalueella odottaa uusia asukkaita! Tämä vuonna 2009 valmistunut koti tarjoaa tilaa ja mukavuutta vaativallekin perheelle. Talon 171 neliömetrin asuinpinta-ala jakautuu kahteen kerrokseen, ja kokonaisuus on täysin muuttovalmis. Valoisassa ja avarassa olohuoneessa on upeat etelään avautuvat ikkunat ja huonekorkeus, joka luo tilan tuntua. Olohuoneesta on suora käynti laajalle etelänpuoleiselle terassille,. Keittiö on varustettu laadukkailla Festivo-kodinkoneilla, ja sen kivitasot tarjoavat erinomaiset puitteet ruoanlaittoon. Yläkerrassa sijaitsee kaksi makuuhuonetta sekä monikäyttöinen parvihuone, joka soveltuu niin makuu- työskentely kuin ruokailutilaksikin. Yläkerran päämakuuhuoneen yhteydessä oma kylpyhuone sekä vaatehuone, Iso moderni saunaosasto tarjoaa rentoutumismahdollisuuden arjen keskellä. Talossa on yhteensä neljä makuuhuonetta, ja alakerran iso varasto/työhuone toimii myös makuuhuonekäytössä omalla sisäänkäynnillään. Puutarhapihassa on runsaasti istutuksia, ja pihasauna sekä autotalli-työhuone-toimistorakennus täydentävät kokonaisuuden. Lämmitysjärjestelmänä toimii energiatehokas maalämpö, ja talossa on koneellinen ilmanvaihto sekä jäähdytys ilmalämpöpumpuin toteutettuna. Sijainti on erinomainen: moottoritien liittymään on alle kilometrin matka, ja Porvoon keskustan palvelut ovat vain noin neljän kilometrin päässä. Lähikoulut ja kaupat ovat myös helposti saavutettavissa. Tämä talo tarjoaa kaiken, mitä perheesi tarvitsee viihtyisään asumiseen – tartu tilaisuuteen ja tee tästä unelmiesi koti!

Porvoo, Metsäkummuntie
Velaton myyntihinta
690 000 €
Asuinneliöt
171.0 m2
Kokonaispinta-ala
227.0 m2

Risto Volanen
Yrittäjä - Toimitusjohtaja
puh. +358500490489
risto.volanen@volanen.fi
-
Kohteen tyyppiOmakotitalo
-
Asuinpinta-ala171 m2
-
Kokonaispinta-ala227 m²
-
Tilan pinta-ala5000 m2
-
KuntoErinomainen
-
Huoneluku5
-
Keittiön varusteiden lisätiedotJää-viileäkaappi (Festivo kotikylmiö sisältäen myös pakastimen ja 0-laatikon.)
-
Kylpyhuoneen kuvausMaster makuuhuoneen yhteydessä oma kylpyhuone-wc. Pesutilat pohjakerroksessa saunaosaston yhteydessä.
-
Pesuhuoneen varusteetSuihku ja valmius poraltaalle
-
KaavoitusEi kaavoitettu
-
KattotyyppiHarjakatto
-
LämmitysjärjestelmäPuu, ilmalämpöpumppu ja maalämpö
-
Valmistumisvuosi2009
-
Rakennus- ja pintamateriaalitPuu ja pohjakerros kiviainesrakenteinen
-
Kerrosnumero2
-
HissiEi
-
PalvelutTarmolan kaupat n. 2,5km
-
Lisätietoja maksuista2023 sähkön kokonaiskulutus 26405kWh tehden yht.n. 4.288€/vuosi 2024 sähkön kokonaiskulutus 29992kWh tehden yht.n. 4.679€/vuosi (sisältää sähköauton kulutuksen) Sähkönkulutus sisältää kaiken sähkön, myös lämmitys-lämminvesi, valaistus ja autotallirakennus.























Pyydä näyttöä tähän kohteeseen
Porvoo, Metsäkummuntie